Доставка Модульных домов по краю

Объявление найдено в городе Супсех

Цена: 1 860 000 руб.


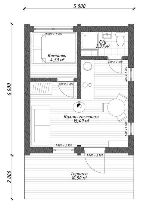
Модульный дом под ключ 43м2! Для постоянного проживания. Что включено в стоимость? Террасная доска и ступени из лиственницы Внутренняя отделка имитацией бруса Внешняя отделка планкеном хвойных пород Высококачественные пароизоляция и ветрозащита Кровля из профнастила с покрытием Силовой каркас из строганной доски 150мм камерной сушки, обработанный огне-биозащитой Профессиональный утеплитель EcoFiber, заменят 1180мм кирпичной стены или 255мм цельного дерева Панорамные окна с ламинацией двойной стеклопакет Отопление: Каркасный дом - самый теплый дом на рынке! Не зря его называют “Термос”! Комфортная температура для каждого. Для отопления 40 м2 достаточно лишь 3х энергоэффективных электроконвекторов, температуру которых, вы можете настраивать для каждой комнаты. Электропроводка: Розетки и переключатели света Вся скрытая электропроводка с применением ГОСТ кабеля и защитной гофры Светильники: точечные, фасадные светильники и интерьерные Бра Собранный распределительный щит с качественными автоматами и УЗО - Срок строительства - 2 месяца по договору - Заводское производство, идеальные запилы! - Актуальная стоимость по каждому проекту. Модульный дом. Модульный дом под ключ. Каркасный дом. Каркасный дом под ключ. Дом под ключ. Барнхаус. (в стоимость не входит фундамент, доставка, и монтаж на участке) Возможна установка теплого пола.